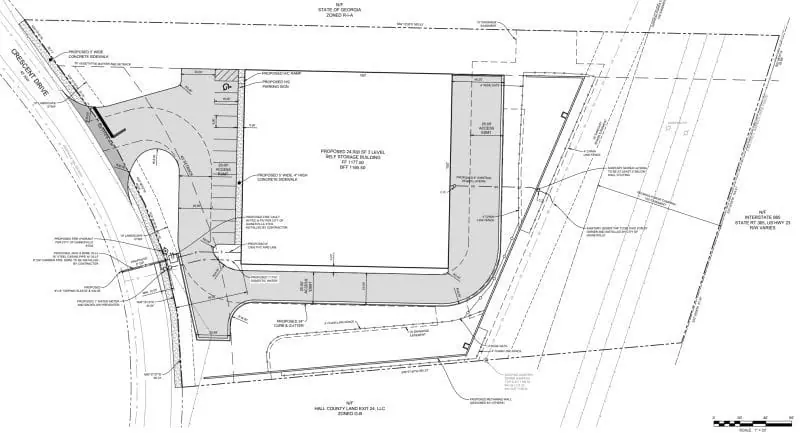
Last month, we completed our pre-construction meeting and submitted our building design plans.
This week, we received approval on those plans and secured our building permit.
With permitting complete, we are now fully prepared to begin horizontal development, which is scheduled to start within the next few weeks.

