Pre-Construction Meeting Completed

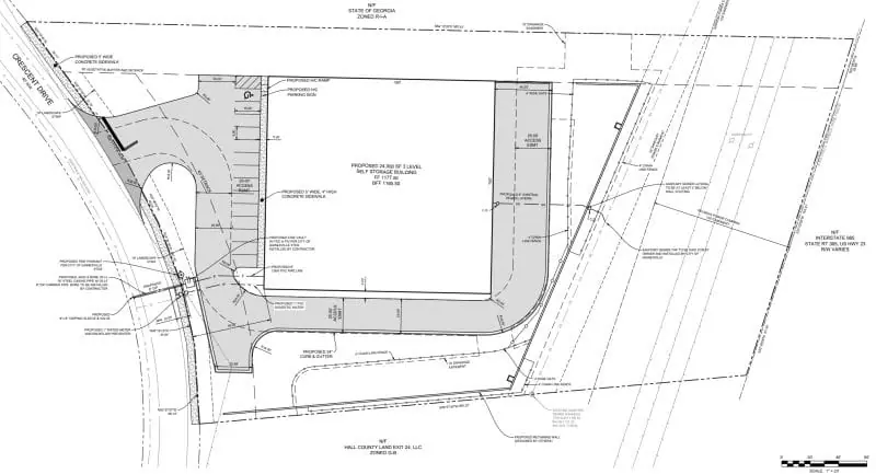
In Q2 2025, we successfully obtained a site development permit and finalized the architectural plans for Gainesville Self-Storage.

Last week, we completed our pre-construction meeting. Our team left the meeting feeling optimistic that we will be able to break ground within the next month.

As we break ground and develop projects, not only does the NAV increase, but so do the development fees that we receive. We share these development fees with investors through quarterly distributions.

1754581193806 1
Scroll to Top