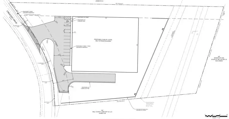
In January, we added a self-storage project in Gainesville, Georgia, to our fund. We recently submitted the site plans to the city for approval, and once approved, we’ll break ground.
This is one of four storage projects in our portfolio, representing 15% of our fund allocation. It’s one of the asset classes we’ve never had to pivot away from.
In addition to this project, we plan to add two to three storage projects to our fund this year.

