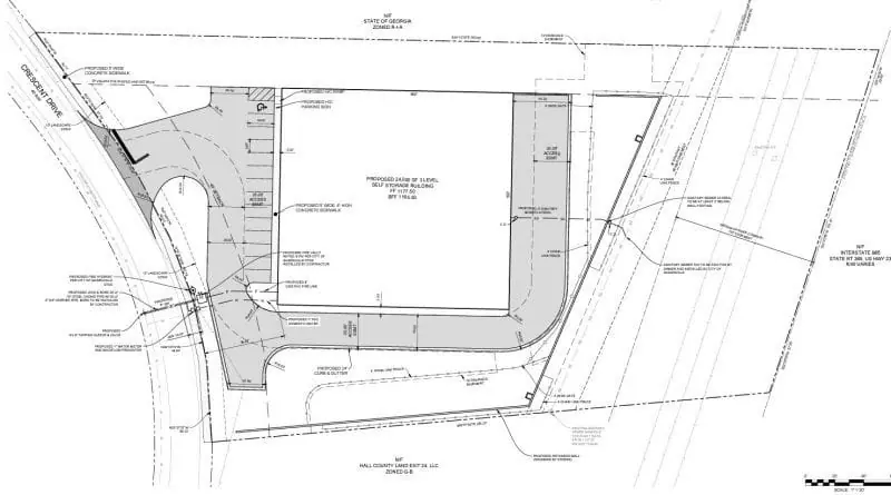
On January 16th, we added a self-storage project in Gainesville, Georgia, to our fund.
We are currently in the pre-development stages and have engaged architects and engineers to finalize the vertical plans.
Once completed, we plan to break ground in Q2.

